Skip To Content

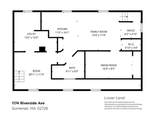
1174 Riverside Ave

Somerset, MA 02726
  • $499,900
  • STATUS: Active
  • MLS #: 73482134
UPDATED: 108 min ago
$499,900
  • 5
    BEDS
  • 0.14
    ACRES
  • 3
    BATHS
  • 0
    1/2 BATHS
  • 2,096
    SQFT
  • $239
    $/SQFT
Type:
Single-Family Home
Built:
1938
County:

School Information

Elementary School:
Middle School:
Listing courtesy of Luis Martins Realty Team of RE/MAX Synergy.

Description

Spacious and versatile home offering 5 bedrooms and 3 full bathrooms in a desirable Somerset location with water views and the ability to walk to the waterfront. The flexible floor plan includes a first-floor primary bedroom suite with private full bath, ideal for convenience and single-level living. The main level offers comfortable living space perfect for everyday living and entertaining. The finished lower level features an in-law setup, providing excellent potential for extended family or guests. With five bedrooms total, the home offers plenty of room for larger households, home offices, or additional living space. Conveniently located near Route 6 and I-195, providing easy access to Providence, Fall River, and surrounding areas. Close to local schools, shopping, restaurants, and everyday amenities. A great opportunity to own a spacious home in a scenic waterfront neighborhood.

Monthly Payment Calculator



The property listing data and information set forth herein were provided to MLS Property Information Network, Inc. from third party sources, including sellers, lessors and public records, and were compiled by MLS Property Information Network, Inc. The property listing data and information are for the personal, non commercial use of consumers having a good faith interest in purchasing or leasing listed properties of the type displayed to them and may not be used for any purpose other than to identify prospective properties which such consumers may have a good faith interest in purchasing or leasing. MLS Property Information Network, Inc. and its subscribers disclaim any and all representations and warranties as to the accuracy of the property listing data and information set forth herein. Data last updated 2026-03-17T00:03:36.21.
www.bostonareahomeclick.com/homes/173656208
Print Image

1174 Riverside Ave Somerset, MA 02726

  • Price: $499,900
  • Status: Active
  • On Site: Days
  • Updated: 108 min ago
  • MLS #: 73482134
5
Beds
3
Baths
0
½ Baths
0.14
Acres
2,096
SQFT
$239
$/SQFT
1938
Built
County:
Bristol
Elementary School:
South Elementry
Middle School:
Somerset Middle
High School:
Somerset Berkley Regional
Property Description
Spacious and versatile home offering 5 bedrooms and 3 full bathrooms in a desirable Somerset location with water views and the ability to walk to the waterfront. The flexible floor plan includes a first-floor primary bedroom suite with private full bath, ideal for convenience and single-level living. The main level offers comfortable living space perfect for everyday living and entertaining. The finished lower level features an in-law setup, providing excellent potential for extended family or guests. With five bedrooms total, the home offers plenty of room for larger households, home offices, or additional living space. Conveniently located near Route 6 and I-195, providing easy access to Providence, Fall River, and surrounding areas. Close to local schools, shopping, restaurants, and everyday amenities. A great opportunity to own a spacious home in a scenic waterfront neighborhood.
Exterior Features

Architectural Style ColonialContemporaryOther (See Remarks) Attached Garage YN No Carport YN No Color Grey Construction Materials FrameStoneSee Remarks Covered Spaces 1 Exterior Features PorchPorch - EnclosedDeckDeck - WoodStorageFenced YardOther Fencing Fenced/EnclosedFenced Garage YN Yes Levels Multi/Split Lot Features ClearedOther Open Parking YN Yes Parking Features DetachedGarage Door OpenerPaved DriveOff StreetDrivewayPaved Parking Total 7 Patio And Porch Features PorchPorch - EnclosedDeckDeck - Wood Property Attached YN No Road Frontage Type Public Road Responsibility Public Maintained Road Roof ShingleOther Spa YN No View Scenic View(s) View YN Yes Water View Features BayCanalHarborOceanPublicOther (See Remarks) Waterfront Features WaterfrontOceanBayWalk toAccessDirect AccessPublicOther (See Remarks)Beach AccessBayOceanDirect AccessWalk toOther (See Remarks)0 to 1/10 Mile To BeachBeach Ownership(PublicOther (See Remarks)) Waterfront YN Yes

Interior Features

Appliances Gas Water HeaterWater HeaterRangeDishwasherRefrigeratorWasherDryer Basement FullFinishedInterior Entry Bedroom2 Features SkylightCeiling Fan(s)ClosetFlooring - HardwoodFlooring - VinylFlooring - WoodWindow(s) - PictureRemodeled Bedroom2 Level MainFirst Bedroom3 Features Bathroom - FullSkylightCathedral Ceiling(s)Ceiling Fan(s)ClosetFlooring - Hardwood Bedroom3 Level Second Bedroom4 Features Ceiling Fan(s)ClosetFlooring - LaminateFlooring - VinylFlooring - WoodRemodeled Bedroom4 Level Second Bedroom5 Features SkylightCloset Bedroom5 Level Basement Building Area Total 2096 Cooling Window Unit(s)Active SolarOther Cooling YN Yes Dining Room Features Bathroom - FullSkylightCeiling Fan(s)Flooring - HardwoodFlooring - LaminateFlooring - VinylFlooring - WoodWindow(s) - PictureExterior AccessOpen FloorplanRemodeled Dining Room Level MainFirst Door Features French Doors Fireplace YN No Fireplaces Total 0 Flooring WoodVinylHardwoodOtherLaminateFlooring - Vinyl Foundation Details Concrete PerimeterBlockBrick/MortarOther Heat Zones 1 Heating Baseboard Heating YN Yes Interior Features Bathroom - FullBathroom - Tiled With Shower StallBathroom - Tiled With Tub & ShowerClosetDining AreaPantryCountertops - UpgradedOpen FloorplanRecessed LightingIn-Law FloorplanFinish - SheetrockOther Kitchen Features Bathroom - FullSkylightCeiling Fan(s)Flooring - HardwoodFlooring - LaminateFlooring - VinylFlooring - WoodWindow(s) - PictureDining AreaPantryBreakfast Bar / NookExterior AccessOpen FloorplanRemodeledGas StoveLighting - Overhead Kitchen Level MainFirst Laundry Features Dryer Hookup - GasGas Dryer HookupIn BasementWasher Hookup Lead Paint Unknown Living Room Features Wood / Coal / Pellet StoveSkylightCeiling Fan(s)ClosetFlooring - HardwoodFlooring - LaminateFlooring - WoodWindow(s) - PictureFrench DoorsCable HookupHigh Speed Internet HookupOpen FloorplanRemodeledLighting - Overhead Living Room Level MainFirst Main Level Bathrooms 1 Main Level Bedrooms 1 Master Bathroom Features Yes Master Bedroom Features SkylightCathedral Ceiling(s)Ceiling Fan(s)Beamed CeilingsCloset - LinenFlooring - HardwoodFlooring - LaminateFlooring - VinylFlooring - WoodRemodeledLighting - Overhead Master Bedroom Level Second Rooms Total 9 Window Features Skylight(s)Window(s) - Picture

Property Features

Association YN No Community Features ShoppingParkHighway AccessMarinaPublic SchoolOtherSidewalks Disclosures Subject to seller finding and securing suitable housing (Sellers Has a Property of Interest) and coordinating closing dates. Solar system subject to PPA. Agreement to be transferred to buyer at closing. Terms available upon request. Buyer/buyer agent to do their own due diligence Electric 200+ Amp Service Home Warranty YN No Listing Terms Seller W/ParticipateContractOther (See Remarks) Property Condition Updated/Remodeled Property Sub Type Single Family Residence Senior Community YN No Sewer Public Sewer Tax Annual Amount 6224 Tax Year 2025 Utilities for Gas Rangefor Electric Rangefor Gas DryerWasher Hookup Water Source Public Year Built Details Actual Zoning R1

Listing information © 2026 MLS Property Information Network. All information is deemed reliable but should be independently verified.
Listing provided courtesy of Luis Martins Realty Team of RE/MAX Synergy: 508-857-5392.


The property listing data and information set forth herein were provided to MLS Property Information Network, Inc. from third party sources, including sellers, lessors and public records, and were compiled by MLS Property Information Network, Inc. The property listing data and information are for the personal, non commercial use of consumers having a good faith interest in purchasing or leasing listed properties of the type displayed to them and may not be used for any purpose other than to identify prospective properties which such consumers may have a good faith interest in purchasing or leasing. MLS Property Information Network, Inc. and its subscribers disclaim any and all representations and warranties as to the accuracy of the property listing data and information set forth herein. Data last updated 2026-03-17T00:03:36.21.
 
https://bt-photos.global.ssl.fastly.net/mlspin/orig_boomver_1_73482134_2.jpg https://bt-photos.global.ssl.fastly.net/mlspin/orig_boomver_1_73482134_2.jpg https://bt-photos.global.ssl.fastly.net/mlspin/orig_boomver_1_73482134_2.jpg
Logo
eXp Realty
361 Newbury Street, 5th Floor
Boston MA, 02115
Listing courtesy of Luis Martins Realty Team of RE/MAX Synergy.